ERSTBEZUG: kleine aber feine südseitige Wohnung mit Loggia Hartberg

Flurgasse 2/2/15
8230 Hartberg
bed
1 Zimmer
dash-arrow
34 m2
Miete
€ 434
pro Monat
Finanzierungsbeitrag
€ 22.439

Variante "Miete mit Kaufoption nach 5 Jahren":
Miete: € 434
Finanzierungsbeitrag: € 22.439
Miete Parkplatz: € 33

Variante "Sofortkauf":
Kaufpreis: € 149.106
Entgelt: € 122
Kaufpreis Parkplatz: € 6.300

 

Lage

Unser neues Projekt in der Steiermark: Die gebös hat sich einen weiteren Herzensplatz in der Steiermark gesichert und baut erstmals im wunderschönen Hartberg - eine besonders lebenswerte Stadt mit historischem und bestens erhaltenem Zentrum. Umgeben von Kunst, Kultur, Natur und Genuss lässt es sich im “steirischen Meran” besonders gut leben. Grund genug für die gebös, hier modernen Wohnraum für Jung und Alt zu schaffen und Wohnträume zu erfüllen.

Beschreibung

​​​​​Hartberg - Wohnraum für Generationen

Erstmals realisiert die gebös Baugenossenschaft ein Wohnprojekt in der charmanten Stadt Hartberg, einem der lebenswertesten Orte der Steiermark. Mitten im Grünen entsteht hier ein modernes und wertbeständiges Zuhause für Jung und Alt: Ein Projekt, das verbindet – mit viel Komfort, durchdachter Architektur und einem Wohnumfeld zum Wohlfühlen.

 

 

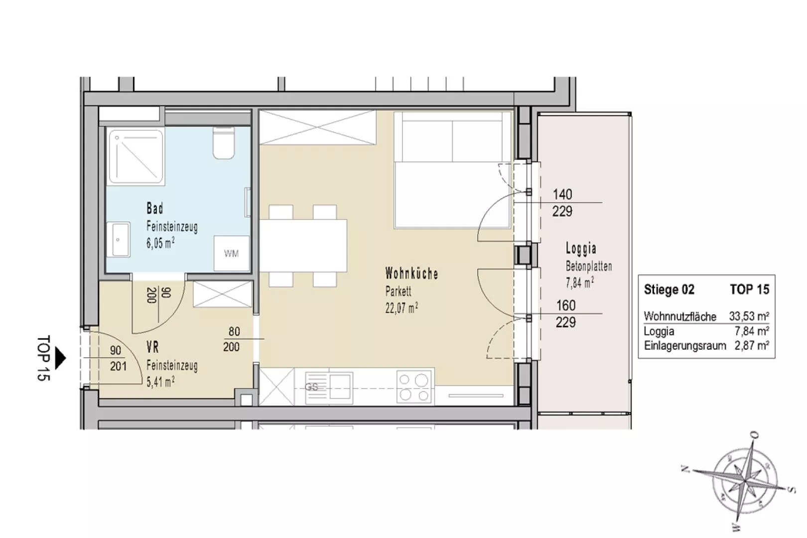
Hartberg, Flurgasse 2/2/15

Freifinanzierte 1-Zimmer-Wohnung mit Loggia in Hartberg.

Zur Wohnung gehört ein Einlagerungsraum und ein Autoabstellplatz im Freien.

Die Wohnung wird entweder zum "Sofortkauf" oder im Modell „Miete mit Kaufoption nach 5 Jahren“ angeboten!

Fliesen, Laminat, Fußbodenheizung, Personenaufzug, Südbalkon / -terrasse, Dusche, Kabel / Satelliten-TV, Parkplatz, Fernwärme, Fahrradraum, Außenliegender Sonnenschutz, Rollladen, Flachdach, Holz, Doppel- / Mehrfachverglasung, Kunststofffenster, Bad mit WC

Objekt Details

Top
2/15
Wohnfläche
33,53 m2
Zimmer
1
Loggia
7,84 m2
Etage
2. Etage
Fahrstuhl
Ja
Befeuerung
Fernwärme
HWB
40,00 kWh/m2a
fGEE
0.67
Miete mit Kaufoption
Ja
Verfügbar ab
vorauss. Sommer 2026

Downloads

Projektinfo

Wohnen in Hartberg

Hartberg, Steiermark
bed 31 Einheiten

Frage unsere
Mitarbeiter

Lass dich zu deinem Traumobjekt und den
Finanzierungsmöglichkeiten beraten

Wohnraum für dich

Weitere Einheiten in diesem Projekt

Alle Objekte arrow
Suche search Kontakt contact