Helle, moderne Seniorenwohnung mit 2 Loggien Hartberg

Flurgasse 2/1/7
8230 Hartberg
bed
2 Zimmer
dash-arrow
70 m2
Miete
€ 857
pro Monat
Finanzierungsbeitrag
€ 44.254

Lage

Unser neues Projekt in der Steiermark: Die gebös hat sich einen weiteren Herzensplatz in der Steiermark gesichert und baut erstmals im wunderschönen Hartberg - eine besonders lebenswerte Stadt mit historischem und bestens erhaltenem Zentrum. Umgeben von Kunst, Kultur, Natur und Genuss lässt es sich im “steirischen Meran” besonders gut leben. Grund genug für die gebös, hier modernen Wohnraum für Jung und Alt zu schaffen und Wohnträume zu erfüllen.

Beschreibung

Hartberg - Wohnraum für Generationen

Erstmals realisiert die gebös Baugenossenschaft ein Wohnprojekt in der charmanten Stadt Hartberg, einem der lebenswertesten Orte der Steiermark. Mitten im Grünen entsteht hier ein modernes und wertbeständiges Zuhause für Jung und Alt. Ein Projekt, das verbindet – mit viel Komfort, durchdachter Architektur und einem Wohnumfeld zum Wohlfühlen.

 

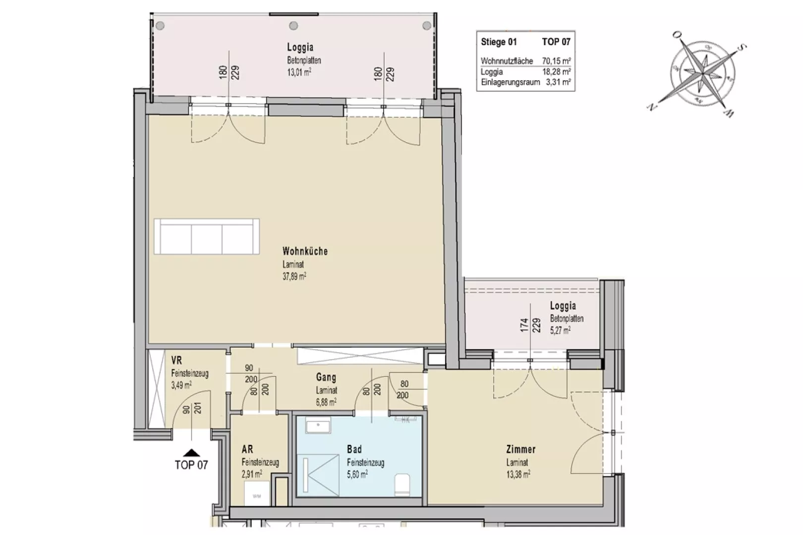
BETREUBARES WOHNEN: Die 2-Zimmer-Wohnung befindet sich im Erdgeschoß der Stiege 1 und teilt sich wie folgt auf: 1 Zimmer mit angrenzender Loggia, Bad mit WC, Vorraum, Gang, Abstellraum und eine große Wohnküche mit angrenzender Loggia.

Das Bad ist behindertengerecht eingerichtet und verfügt über eine bodenebene Dusche.

Zur Wohnung gehört ein Einlagerungsraum und ein Autoabstellplatz (€ 33,00/Monat) im Freien.

In Verbindung mit dem Nutzungsvertrag wird auch ein Betreuungsvertrag mit dem Samariterbund Steiermark abgeschossen. Die Kosten dafür betragen € 156/Monat.

 

 

Fliesen, Laminat, Fußbodenheizung, Personenaufzug, Dusche, Betreutes Wohnen, Kabel / Satelliten-TV, Parkplatz, Fernwärme, Südostbalkon / -terrasse, Fahrradraum, Seniorengerecht, Rollstuhlgerecht, Außenliegender Sonnenschutz, Rollladen, Flachdach, Holz, Massiv, Schlüsselfertig mit Keller, Doppel- / Mehrfachverglasung, Kunststofffenster, Bad mit WC

Objekt Details

Top
1/7
Wohnfläche
70,15 m2
Zimmer
2
Loggia
18,48 m2
Etage
EG
Fahrstuhl
Ja
Befeuerung
Fernwärme
HWB
29,00 kWh/m2a
fGEE
0.67
Verfügbar ab
vorr. Sommer 2026

Downloads

Projektinfo

"Betreubares Wohnen" in Hartberg

Hartberg, Steiermark
bed 23 Einheiten

Frage unsere
Mitarbeiter

Lass dich zu deinem Traumobjekt und den
Finanzierungsmöglichkeiten beraten

Wohnraum für dich

Weitere Einheiten in diesem Projekt

Alle Objekte arrow
Suche search Kontakt contact