Schönes Eckreihenhaus mit großem Garten und Dachterrasse Sankt Marein im Mürztal

Sölsnitzstraße/RH 15
8641 Sankt Marein im Mürztal
bed
4 Zimmer
dash-arrow
89 m2
Kauf
€ 498.729
Entgelt
€ 232

Variante "Miete mit Kaufoption nach 5 Jahren":
Miete: € 1.330
Finanzierungsbeitrag: € 89.694

Variante "Sofortkauf":
Kaufpreis: € 498.729
Entgelt: € 232

Lage

Diese attraktive Reihenhausanlage liegt in der ruhigen Sölsnitzstraße in Sankt Marein im Mürztal, umgeben von der malerischen Natur der Steiermark. Die Lage bietet eine hervorragende Infrastruktur: Ein Arzt, eine Apotheke, ein Supermarkt sowie eine Bank und ein Geldautomat sind in unmittelbarer Nähe. Die gute Anbindung an öffentliche Verkehrsmittel, einschließlich Bus und Bahnhof, sowie der Autobahnanschluss machen diese Gegend besonders lebenswert.

Beschreibung

Die Gemeinde Sankt Marein im Mürztal liegt in der wunderschönen Region Hochsteiermark und gehört zum Bezirk Bruck-Mürzzuschlag. Inmitten der herrlichen Naturlandschaft die Sankt Marein umgibt, werden bis voraussichtlich Frühjahr 2026 freifinanzierte Reihenhäuser mit einer Wohnfläche von 89m² bzw. 107m² errichtet.

Schönes 4-Zimmer-Reihenhaus mit großen Terrassen

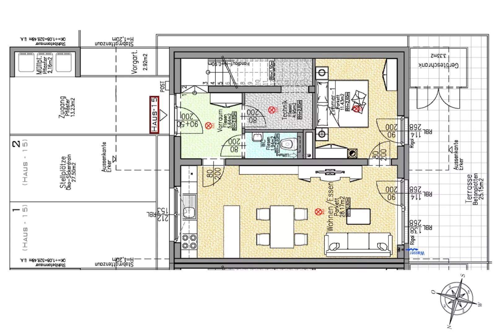
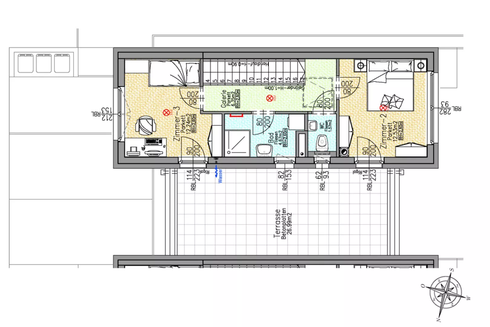
Man betritt das ost-westseitig ausgerichtete Reihenhaus im Erdgeschoss über einen zentral positionierten Vorraum, von dem man in die einladende Wohnküche und weiter in ein Zimmer mit Ausgang auf die Terrasse mit angrenzenden Garten gelangt. Ebenfalls wird vom Vorraum ein WC, der Technikraum und der Aufgang ins Obergeschoß erschlossen. Über die einläufige Stiege erreicht man das Obergeschoss, wo ebenfalls von einer zentralen Galerie zwei weitere Zimmer, ein Tageslicht-Bad mit Dusche und ein getrennt begehbares WC mit Fenster erreicht werden. Die großzügige Dachterrasse ist von beiden Zimmern im Obergeschoß aus begehbar.

Zu jedem Reihenhaus gehören ein Geräteschrank auf der Terrasse im Erdgeschoss sowie zwei Autoabstellplätze im Freien und ein kleiner Müllplatz direkt vor dem Haus.

Das Reihenhaus wird entweder zum "Sofortkauf" oder im Modell „Miete mit Kaufoption nach 5 Jahren“ angeboten!

Fliesen, Parkett, Fußbodenheizung, Wohnküche / offene Küche, Ostbalkon / -terrasse, Westbalkon / -terrasse, Bad mit Fenster, Dusche, Parkplatz, Luftwärmepumpe, Abstellraum, Getrennte Toiletten, Rollladen, Flachdach, Massiv, Schlüsselfertig mit Bodenplatte, Doppel- / Mehrfachverglasung, Kunststofffenster, Photovoltaik Anlage

Objekt Details

Top
RH 15
Wohnfläche
89,49 m2
Zimmer
4
Terrasse
52,14 m2
Garten
154,75 m2
Stellplätze
2
Etage
EG
Befeuerung
Luftwärmepumpe
HWB
56,00 kWh/m2a
fGEE
0.37
Verfügbar ab
Frühjahr 2026

Downloads

Projektinfo

Reihenhäuser in St. Marein im Mürztal

Sankt Marein im Mürztal, Steiermark
bed 14 Einheiten

Frage unsere
Mitarbeiter

Lass dich zu deinem Traumobjekt und den
Finanzierungsmöglichkeiten beraten

Wohnraum für dich

Weitere Einheiten in diesem Projekt

Alle Objekte arrow
Suche search Kontakt contact